Na sprzedaż 520.000zł - Mieszkanie
EN – full English version below – contact us anytime!
Na sprzedaż mieszkanie zlokalizowane przy ul. Stanisławowskiej przy planowanej stacji metra Mińska.
To miejsce, które po remoncie może stać się wygodnym mieszkaniem lub sensowną inwestycją.
ATUTY OFERTY
- Przestronne, jasne mieszkanie, wysokość pomieszczeń 2,75 m
- Układ mieszkania pozwala na wydzielenie drugiego pokoju
- Wymieniona instalacja elektryczna
- Bardzo dobrze skomunikowana lokalizacja
OPIS MIESZKANIA
Mieszkanie posiada przestronny salon o powierzchni ok. 23 m², w którym bez problemu mieści się zarówno część wypoczynkowa, jak i przestrzeń do pracy. Duże okno wychodzi na zieleń, a wysokość pomieszczeń 2,73 m daje poczucie przestrzeni typowe dla kamienic. Widna kuchnia w przedpokoju dużo miejsca na zabudowę.
Mieszkanie przeznaczone jest do remontu, a jego układ daje możliwość wydzielenia dodatkowego pokoju. Wnękę w salonie, która obecnie pełni funkcję miejsca do pracy, można przeznaczyć na aneks kuchenny. Dotychczasową, oddzielną kuchnię można wówczas zaadaptować na sypialnię. Taki układ sprawdzi się zarówno na potrzeby własne, jako inwestycja na wynajem.
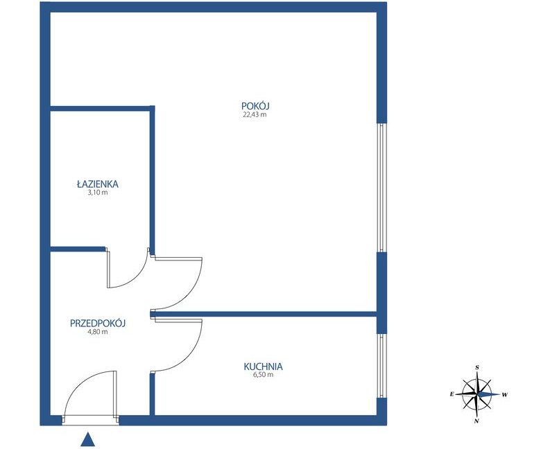
PLAN MIESZKANIA
- Salon / pokój dzienny
- Oddzielna, zamknięta kuchnia
- Łazienka z wanną
- Przedpokój
LOKALIZACJA
Mieszkanie znajduje się na Kamionku, w dzielnicy Praga-Południe, niedaleko Parku Skaryszewskiego.
W otoczeniu lokalu znajduje się pełna infrastruktura niezbędna do codziennego funkcjonowania:
- Biedronka w budynku oraz Żabki, piekarnie, apteki i delikatesy – do 200 m
- Przedszkola, żłobki, szkoły podstawowe i liceum – do 500 m
- Place zabaw, siłownie plenerowe oraz trasy rowerowe
- Park Skaryszewski – ok. 800 m
- Jeziorko Kamionkowskie i Kamionkowskie Błonia – ok. 1 km
W pobliżu dostępna jest bogata oferta gastronomiczna – klimatyczne kawiarnie, autorskie restauracje, pizzeria oraz tradycyjny bar mleczny. W sąsiedztwie znajduje się Urząd Dzielnicy, Sąd Rejonowy oraz liczne punkty usługowe. Dodatkowym atutem lokalizacji jest rozbudowana infrastruktura sportowa – nowoczesny stadion lekkoatletyczny Orzeł, hala sportowa OSiR Praga-Południe oraz pływalnia Szuwarek.
KOMUNIKACJA
- Przystanki tramwajowe i autobusowe – 2–3 min pieszo
- Linie: 3, 22, 24, 26, 135, 173, 202, 311, N03, N21, N71
- Rondo Wiatraczna – ok. 600 m (6–8 minut spacerem)
- Metro M2 Stadion Narodowy – 10–12 min komunikacją
- Dworzec Wschodni PKP / SKM – ok. 10 min
- Dojazd do centrum – 20–25 min komunikacją, 15–20 min samochodem
- Lotnisko Chopina – ok. 30–35 min
Istotnym atutem inwestycyjnym jest planowana w pobliżu nieruchomości budowa 3 linii metra (M3, stacja Mińska). Według aktualnych założeń nowa stacja ma powstać w perspektywie około 3 lat.
INFORMACJE DODATKOWE
- Czynsz administracyjny 750 zł
- Dodatkowo płatny prąd i gaz według zużycia
- W mieszkaniu została wymieniona instalacja elektryczna
Zapraszam na prezentację 🙂
***EN***
For sale an apartment located on Stanisławowska Street, near the planned Mińska metro station.
This is a property that, after renovation, can become a comfortable home or a sound investment.
KEY ADVANTAGES
- Spacious, bright apartment; ceiling height 2.73 m
- The layout allows for creating a second room
- Electrical installation has been replaced
- Very well-connected location
APARTMENT DESCRIPTION
The apartment features a spacious living room of approximately 23 m², easily accommodating both a relaxation area and a workspace. A large window overlooks greenery, and the 2.73 m ceiling height provides the sense of space typical of pre-war tenement buildings.
There is a bright kitchen accessed from the hallway, with ample space for built-in cabinetry.
The apartment requires renovation, and its layout allows for the creation of an additional room. The alcove in the living room, currently used as a workspace, can be converted into a kitchenette. The existing separate kitchen could then be adapted into a bedroom. This layout works well both for owner-occupation and as a rental investment.
APARTMENT LAYOUT
- Living room / lounge
- Separate, enclosed kitchen
- Bathroom with bathtub
- Hallway
LOCATION
The apartment is located in Kamionek, in the Praga-Południe district, close to Skaryszewski Park.
The immediate area offers full infrastructure necessary for everyday living:
- Biedronka supermarket in the building, as well as Żabka stores, bakeries, pharmacies, and delicatessens – within 200 m
- Kindergartens, nurseries, primary schools, and a high school – within 500 m
- Playgrounds, outdoor gyms, and cycling routes
- Skaryszewski Park – approx. 800 m
- Kamionkowskie Lake and Kamionkowskie Meadows – approx. 1 km
Nearby, there is a wide range of dining options, including atmospheric cafés, author-driven restaurants, a pizzeria, and a traditional milk bar. The neighborhood also includes the District Office, the District Court, and numerous service points. An additional advantage is the extensive sports infrastructure: the modern Orzeł athletics stadium, the OSiR Praga-Południe sports hall, and the Szuwarek swimming pool.
TRANSPORT
- Tram and bus stops – 2–3 minutes on foot
- Lines: 3, 22, 24, 26, 135, 173, 202, 311, N03, N21, N71
- Rondo Wiatraczna – approx. 600 m (6–8 minutes’ walk)
- Metro M2 Stadion Narodowy – 10–12 minutes by public transport
- Warszawa Wschodnia railway station (PKP / SKM) – approx. 10 minutes
- City center – 20–25 minutes by public transport, 15–20 minutes by car
- Chopin Airport – approx. 30–35 minutes
A significant investment advantage is the planned construction of Metro Line 3 (M3), with the Mińska station located near the property. According to current plans, the new station is expected to be completed in approximately three years.
ADDITIONAL INFORMATION
- Monthly administrative fee: PLN 750
- Electricity and gas payable additionally according to consumption
- Electrical installation has been replaced
I invite you to schedule a viewing.
Feel free to schedule a viewing 🙂
Świadectwo charakterystyki energetycznej – zapotrzebowanie na energię:
EU – użytkową (kWh/m2*rok): 60.89; EK – końcową (kWh/m2*rok): 93.67; EP – nieodnawialną energię pierwotną (kWh/m2*rok): 121.77; EC02 – Wielkość emisji CO2 (t C02/m2*rok): 0.03; UOZE – Udział odnawialnych źródeł energii w zapotrzebowaniu na energię końcową [%]: 0.00;
- Piętro: 3
- Liczba pięter: 3











