Na sprzedaż 985.000zł - Działka
Działka z pozwoleniem na budowę projekt domu ok. 200 m² blisko Warszawy
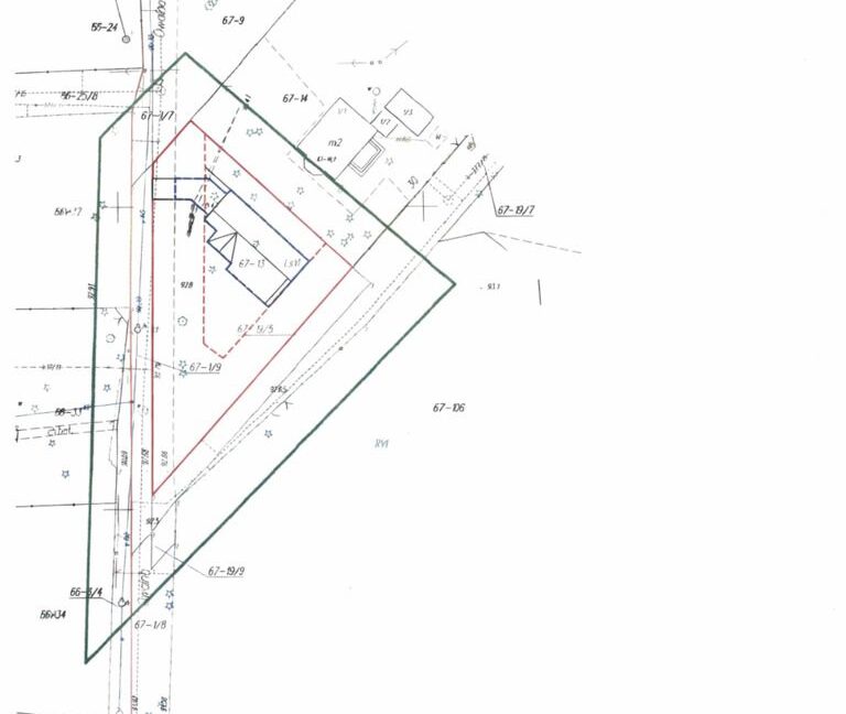
Na sprzedaż atrakcyjna działka o nietypowym kształcie, z wydanym pozwoleniem na budowę oraz gotowym projektem domu jednorodzinnego.
Projekt przewiduje budowę funkcjonalnego domu o powierzchni ok. 200 m² – parterowego z użytkowym poddaszem oraz dużym garażem dwustanowiskowym. To idealna propozycja dla osób, które chcą szybko rozpocząć realizację inwestycji bez konieczności przechodzenia przez długotrwałe formalności.
Media:
• prąd – na działce
• wodociąg – w ulicy
• kanalizacja – w trakcie realizacji (ujęta w projekcie)
Lokalizacja:
Nieruchomość położona w spokojnej, zalesionej okolicy, w otoczeniu nowej zabudowy jednorodzinnej. Dynamicznie rozwijający się rejon zapewnia komfort życia blisko natury, a jednocześnie dogodny dostęp do infrastruktury miejskiej.
• ok. 20 km do centrum Warszawy
• ok. 500 m do al. Nadwiślańskiej
Działka łączy w sobie prywatność, zielone otoczenie oraz bardzo dobrą komunikację z miastem.
Cena do negocjacji.
Zapraszam do kontaktu i na prezentację.




